Husprosjektet var en del av faget «Bygningslære» i 1. klasse på byggingeniørstudiet ved Høgskolen i Østfold. Er litt stolt av prosjektet, i og med at jeg klarte å dra i land
en toppkarakter. Jeg vet ikke hvor mange timer jeg har brukt på å tegne i det prosjektet, men det var uansett mange. Jeg slettet blant annet det første huset jeg tegnet,
som fra utsiden så nesten likt ut som det på bildet, pga. diverse tekniske og planmessige feil og uheldige løsninger. Huset og alle detaljer er tegnet i AutoCad Revit.

I tillegg til selve tegnearbeidet omfattet prosjektet mye rapportskriving. Husprosjektet besto av følgende dokumenter:
| Dok. nr | Forklaring | Type | Sider |
| NBR5174 | Søknad om tillatelse til tiltak | Skjema | 1 |
| A01 – NBR5175 | Opplysninger om tiltakets ytre rammer og bygningsspesifikasjon | Skjema | 3 |
| NBR5154 | Nabovarsel | Skjema | 1 |
| C01 – NBR5155 | Gjenpart av nabovarsel | Skjema | 2 |
| D01 | Situasjonsplan | Tegning | 1 |
| D02 | Fasade (fra sør) | Tegning | 1 |
| E01 | Energiberegning og dokumentasjon | Dokument | 11 |
| E02 | Brannteknisk dokumentasjon | Dokument | 21 |
| E03 | Lydteknisk dokumentasjon | Dokument | 5 |
| E04 | Klimagassbelastning | Dokument | 22 |
| E05 | Estestisk utforming og forholdet til omgivelsene | Tegning | 1 |
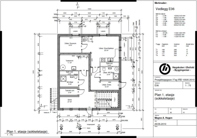
| E06 | Plantegning 1. etasje | Tegning | 1 |
| E07 | Plantegning 2. etasje | Tegning | 1 |
| E08 | Plantegning 3. etasje | Tegning | 1 |
| E09 | Representativt hovedsnitt – kortside | Tegning | 1 |
| E10 | Representativt hovedsnitt – langside | Tegning | 1 |
| E11 | Detalj 1 – Ringmur, fundament- og sokkelveggløsning | Tegning | 1 |
| E12 | Detalj 2 – Etasjeskiller ved overgang til 1. etasje | Tegning | 1 |
| E13 | Detalj 3 – Takkonstruksjon (etg. skiller, raft og isoløsning i tak) | Tegning | 1 |
| E14 | Detalj 4 – Gjennomføring av pipe i tak | Tegning | 1 |
| E15 | Detalj 5 – Møneløsning | Tegning | 1 |
| E16 | Detalj 6 – Nedre del av skillekonstruksjon (enebolig/utleiedel) | Tegning | 1 |
| E17 | Detalj 7 – Øvre del av skillekonstruksjon (enebolig/utleiedel) | Tegning | 1 |
| E18 | Detalj 8 & 9 – Vertikal- og horisontalsnitt av vindu | Tegning | 1 |
| E19 | Detalj 10 – Innfesting av terrasse | Tegning | 1 |
| F01 – NBR5181 | Søknad om ansvarsrett | Skjema | 1 |
| G01 – NBR5149 | Kontrollerklæring | Skjema | 1 |
Under ses planløsning i sokkeletasjen. Det var et krav i oppgaven at huset skulle ha en egen utleiedel, mye fordi dette påvirker bygningens krav til brannmotstand.
Planløsning i boligens hovedetasje:
Planløsning i boligens 2. etasje:
Detaljtegning av ringmur, fundament- og sokkelveggløsning:
Detaljtegning av takkonstruksjon, etasjeskiller, raft- og isolasjonsløsning i tak/himling: